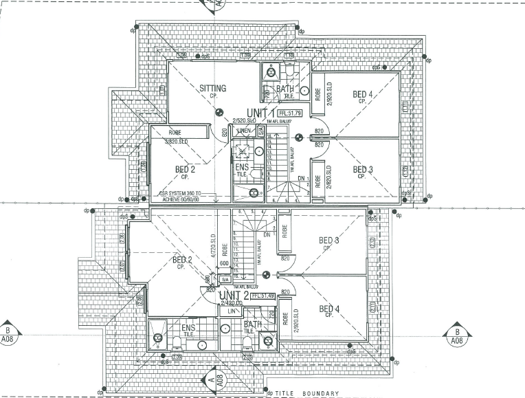
This is two townhouse development by the client, built for themselves to live in by 2014. unit 1 181m2, unit 2 is 182m2, total area 363m2. Both are 4 bedrooms, 2 bathrooms, 1 ensuite and 1 powder room with single garage.

This is two townhouse development by the client, built for themselves to live in by 2014. unit 1 181m2, unit 2 is 182m2, total area 363m2. Both are 4 bedrooms, 2 bathrooms, 1 ensuite and 1 powder room with single garage.