CN
Home
Our Services
NEW HOUSES CONSTRUCTION
TOWNHOUSE OR MUTI-UNITS DEVELOPMENT
PROJECT MANAGEMENT
RENOVATIONS
EXTENSIONS
CONSTRUCTION TECHNICAL S&M
OUR PROJECTS
ARCHITECTURE DESIGN & PLAN
Contact us
OUR PROJECTS
Home
-
OUR PROJECTS
-
2024
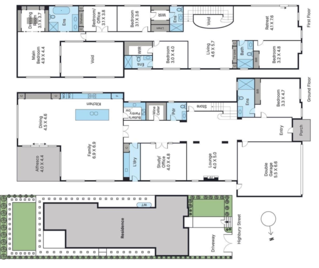
7 Highbury Street, Balwyn North, VIC
Double storey, French-style house
Contact us
Spending time on details, Never know what is happening behind the construction. good memory forever!